площадью 104,80 м2, по цене 20830400 по адресу поселок Нагорное - Полковника Романова улица,5

Цена 20 830 400 р.
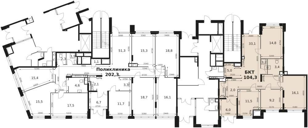
Адрес поселок Нагорное, Полковника Романова улица,5
Площадь помещения 104,8 м2
Готовый дом! Прямая продажа от застройщика! Жилой Комплекс класса Комфорт. Продаётся коммерческая недвижимость в сданном корпусе общей площадью 104.8 кв. м на 1-м этаже 9 этажного дома. Дополнительная скидка 2% на покупку 2-й и последующей недвижимости: для клиентов предоставляется специальная скидка до 2% в строящихся и готовых корпусах. Скидку на вторую или последующую покупку можно получить при приобретении первого объекта недвижимости напрямую от застройщика. Акции проводятся до 30.06.2025. Подробности в офисах продаж. Расположение комплекса: Ощутите прелесть жизни в маленьком европейском городке, не выезжая на пределы Москвы. Здесь всё рядом и продумано для вас: магазины, булочные, прачечные, аптеки и салоны красоты в шаговой доступности. Наличие кладовых позволит вам поддерживать идеальный порядок и уют! Мы учли каждую мелочь, чтобы вы могли наслаждаться повседневной жизнью- Двор без машин, закрытое, безопасное, охраняемое место с удобным доступом для вашего авто, более чистый воздух и гарантированное место для стоянки - и это далеко не все преимущества наличия подземного паркинга. Наличие кладовых позволит вам поддерживать идеальный порядок и уют в вашей квартире! Родители самых маленьких жильцов будут в восторге от колясочных, запирающихся на магнитный замок. Весь малогабаритный семейный транспорт - коляска, велосипеды и самокаты - прекрасно будет ждать вас здесь до следующего раза. Вымыть колеса коляски или лапы питомцу можно в специальных помещениях, расположенных рядом с колясочной. Транспортная доступность: Менее 1км от МКАД: рядом Осташковское и Алтуфьевское шоссе; 15 минут до метро «Алтуфьево», «Бибирево», «Медведково»; 7 минут пешком до ближайшей остановки общественного транспорта. Внутренняя инфраструктура: Ощутите прелесть жизни в маленьком европейском городке, не выезжая на пределы Москвы. Здесь всё рядом и продумано для вас: магазины, булочные, прачечные, аптеки и салоны красоты в шаговой доступности. - 2 муниципальных детских сада и муниципальная школа - Медицинский центр - Магазины, аптеки, салоны красоты, кафе, булочные на первых этажах комплекса
Объявление № 22489108
Дата подачи:
8 июня 2025 г. 4:42
Дата обновления:
8 июня 2025 г. 4:00
Просмотров 14 Хотите продать быстрее?

Продавец
Отдел продаж
Показать номер телефона
Пожаловаться
Комментарии:
Добавить